To Let
£1,400 pcm

Alma Terrace, St. Leonards-On-Sea

4
1
2

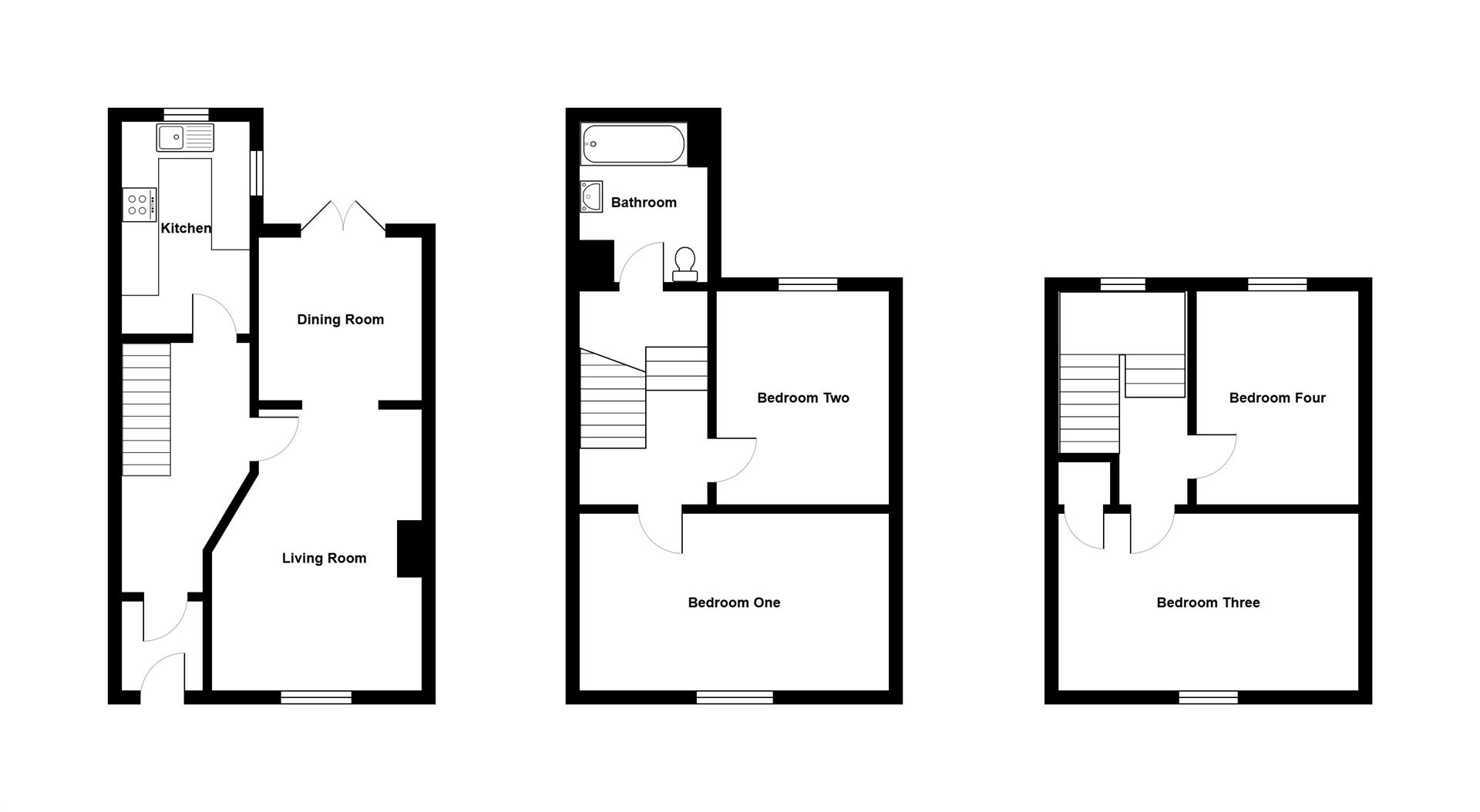
Nestled in the charming area of Alma Terrace, St. Leonards-On-Sea, this beautifully refurbished terraced house offers a delightful blend of modern living and classic comfort.

Upon entering, you are greeted by two inviting reception rooms that provide ample space for relaxation and entertaining. The layout is both spacious and practical, ensuring that every corner of the home is utilised effectively.

The property also includes a well-appointed bathroom, catering to the needs of a busy household. The private rear garden is a standout feature, offering a tranquil outdoor space perfect for enjoying sunny days or hosting gatherings with friends and family.

Conveniently located close to local shops, residents will appreciate the ease of access to everyday amenities, enhancing the overall appeal of this lovely home.

  • Four Double Bedrooms
  • Terrace House
  • Private Rear Gardens
  • Spacious Rooms
  • Modern Throughout
  • Street Parking
  • Gas Central Heating
  • The holding deposit required for this property is £323.07
  • The security deposit required for this property £1,615.38
  • An annual income of £42,000 is required to pass references for this property.

Request a Viewing

Complete the form below and one of our team will be in touch

    This site is protected by reCAPTCHA and the Google Privacy Policy and Terms of Service apply.
    Agent Details
    Gemma Weddle MARLA
    Senior Lettings Manager
    Gemma joined the team as our Senior Lettings Manager with many years working in the industry, and is qualified to ARLA Level 3. Gemma looks after our landlords and tenants and liaises with the rest of the team to ensure an excellent service is achieved. Gemma’s favourite part of the role is to help landlords grow their portfolio and maximise the potential with their current buy to let properties. In her spare time Gemma loves to travel and build memories with her family and their dog, Albus.

    Want to find out more?

    Our dedicated team is ready to provide you with the assistance you need. Call us on 01424 212233 for more information about our services.

    How much is your property really worth?

    Choose an option below to get an instant valuation or book an in-person appraisal.