To Let
£1,950 pcm

Monument Way, St Leonards On Sea

3
2
1

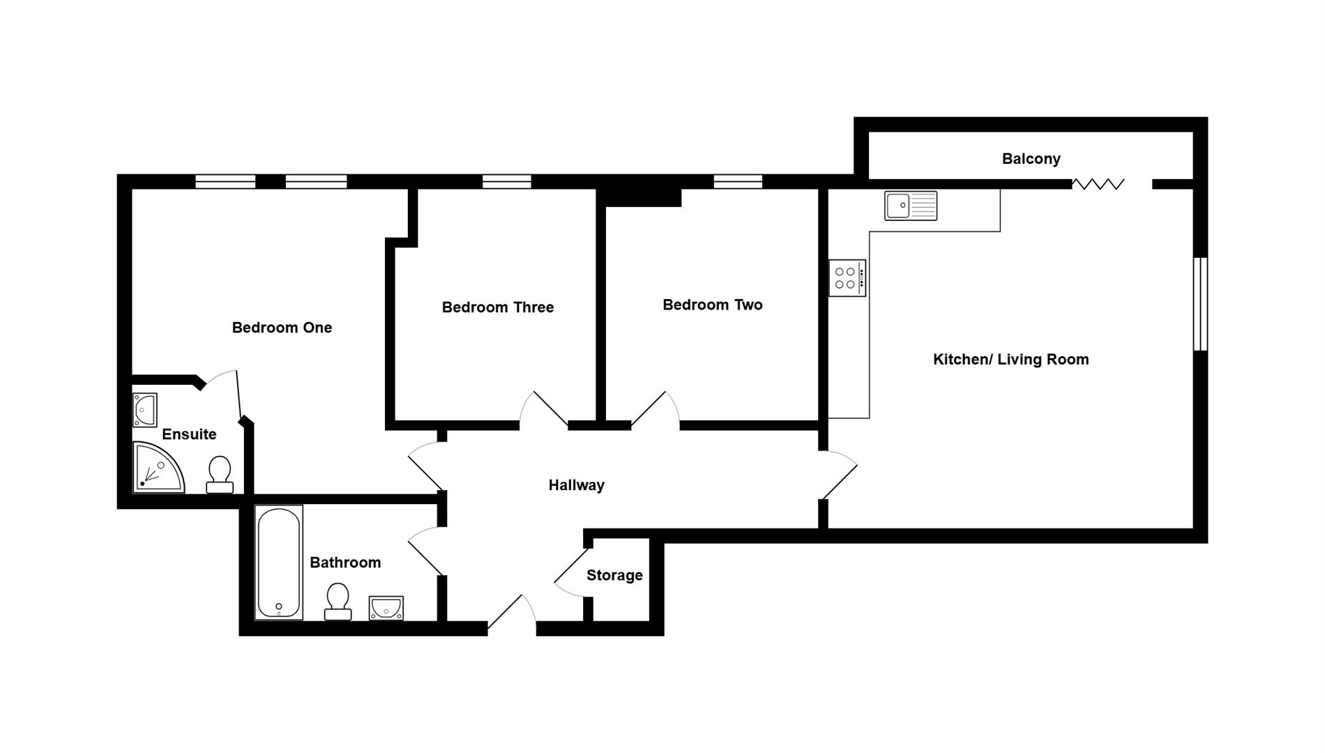
Located in a modern development on Monument Way, St Leonards-on-Sea, this beautifully presented three-bedroom flat offers stylish contemporary living close to local amenities and transport links. Situated within a newly built block, the property benefits from lift access to all floors and includes an allocated underground parking space for added convenience.

Inside, the flat features a bright and spacious open-plan living area with doors leading onto a private balcony, perfect for relaxing or entertaining. The modern fitted kitchen comes complete with integrated appliances, while the three well-proportioned bedrooms provide ample space for family living or working from home. A sleek bathroom and additional storage space complete the interior.

With its high-quality finish, secure parking, and excellent location, this flat is ideal for those seeking comfortable modern living by the coast.

  • Modern New Development
  • Spacious Three-Bedroom Layout
  • Private Balcony
  • Lift Access to All Floors
  • Underground Allocated Parking Space
  • Open-Plan Living Area with Modern Kitchen
  • Sought-After St Leonards Location
  • The holding deposit required for this property is £450
  • The security deposit required for this property £2,250
  • An annual income of £58,500 is required to pass references for this property.

Request a Viewing

Complete the form below and one of our team will be in touch

    This site is protected by reCAPTCHA and the Google Privacy Policy and Terms of Service apply.
    Agent Details
    Gemma Weddle MARLA
    Senior Lettings Manager
    Gemma joined the team as our Senior Lettings Manager with many years working in the industry, and is qualified to ARLA Level 3. Gemma looks after our landlords and tenants and liaises with the rest of the team to ensure an excellent service is achieved. Gemma’s favourite part of the role is to help landlords grow their portfolio and maximise the potential with their current buy to let properties. In her spare time Gemma loves to travel and build memories with her family and their dog, Albus.

    Want to find out more?

    Our dedicated team is ready to provide you with the assistance you need. Call us on 01424 212233 for more information about our services.

    How much is your property really worth?

    Choose an option below to get an instant valuation or book an in-person appraisal.